赣南锦程专业人工挖孔桩施工队
首页
企业简介
产品大全
联系我们
企业信息
在线留言
产品列表
PRODUCT
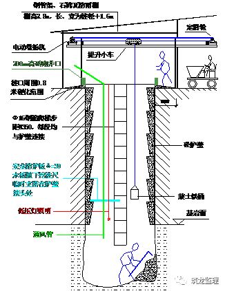
人工挖孔桩钢护筒施工方案
人工挖孔桩水磨钻施工方案上传版.doc
北水头大桥人工挖孔桩施工方案
11步让你了解基础施工全流程(挖孔桩、旋挖桩)
可怕 施工现场天降钢管 工人竟习以为常 杜绝习惯性违章 这份培训好教材值得收藏
建筑工程基础人工挖孔桩施工质量控制
石方 人工 挖孔桩
感悟红旗渠,奋斗新今典 在路上
6小时就能建好的超美别墅,只要20万
热销猛士哈儿机人工挖孔桩机优质电箱
人工挖孔桩施工的工艺流程
桩基施工 #水磨钻 #人工挖孔桩 #施工现场实拍 #抗滑.
人工挖孔桩技术交底
老师 能不能帮我填一下这个人工挖孔桩的信息?这个看不太懂
关注重点工程 7.81亿 东升大桥最新进展来了
宜宾人工挖孔桩施工队若水量较大
【人工挖孔用挖桩机哈儿吊 挖孔桩哈儿机打桩架子小吊机吊运机图片】人工挖孔用挖桩机哈儿吊 挖孔桩哈儿机打桩架子小吊机吊运机
中建一局新建京张铁路ZFSG4标项目部每日快报
建筑工程安全生产标准化图集,没见过这么全的!
人工挖孔桩单桩施工记录
如若转载,请注明出处:http://www.gnzywk.com/product/list-10.html
1
8
9
10
11
12